
型号说明:
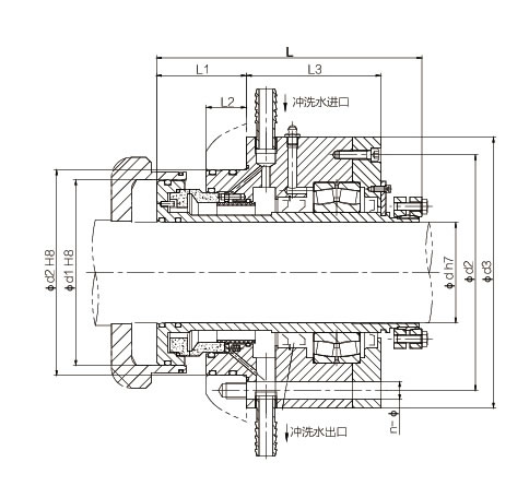
AEB型为侧、卧式搅拌器单端面机械密封,机械密封设置轴承。
结构特点:
Ø 单端面集装式
Ø 任意旋向
Ø 设置有承载径向力轴承
Ø 静止环补偿、弹簧外置
Ø 设置冲洗液接口
Ø 独特的结构适用于含固体悬浮颗粒的工况
Ø 可以满足在带浆液维修机械密封的要求
参数范围:
压 力:0~1.0MPa 温 度:-20~75℃
线 速 度:≤2m/s 轴 径:40~150mm
含固量:≤30%
应用行业:
等效代替德国的LIGHTNIN(莱宁)侧搅拌器上的原装进口机械密封。主要应用于烟气脱硫装置中,其他含磨蚀性悬浮固体颗粒介质或易结晶溶液介质的侧、卧式搅拌器上也可应用。