
型号说明:
208型机械密封轴套介质端采用与金属波纹管连接,适用于无菌级工况;
208GY型机械密封轴套介质端采用组合密封,不适用于无菌级工况;
结构特点:
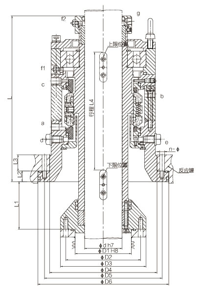
Ø 双端面集装式
Ø 任意旋向
Ø 设置轴承
Ø 采用了独特结构,使搅拌轴旋转的同时能做轴向往复运动。
Ø 在严格禁止封液污染物料的制药设备中使用时,可以采用氮气代替封液冷却,此时摩擦副干运转。
Ø 按卫生级需要设置收集套,并配置冲洗接口
参数范围:
压 力:真空~0.4(1.6)MPa 温 度:-20~130℃
线 速 度:≤1(3)m/s 轴 径:30~200mm
行程:0~500mm
注:以上参数括号内数据为湿润滑设计参数。
应用行业:
主要应用于制药、化工等行业的干燥机中,也可用在其他反应釜中。
浙江沃曼

服务全球流体工业